Ficha
PISO 3 DORMITORIOS Y 2 BAÑOS PARA REFORMAR EN AVILES
Avilés - REF. 2999

108 m2

3

2

1
venta: 95.000 €
Descripción

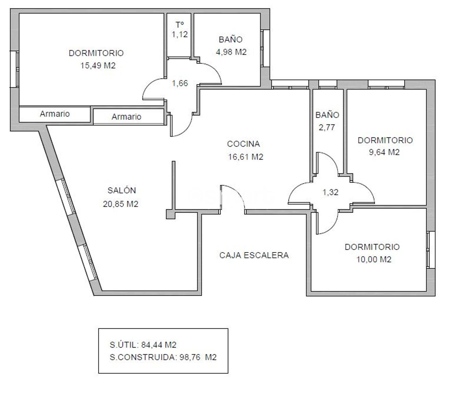
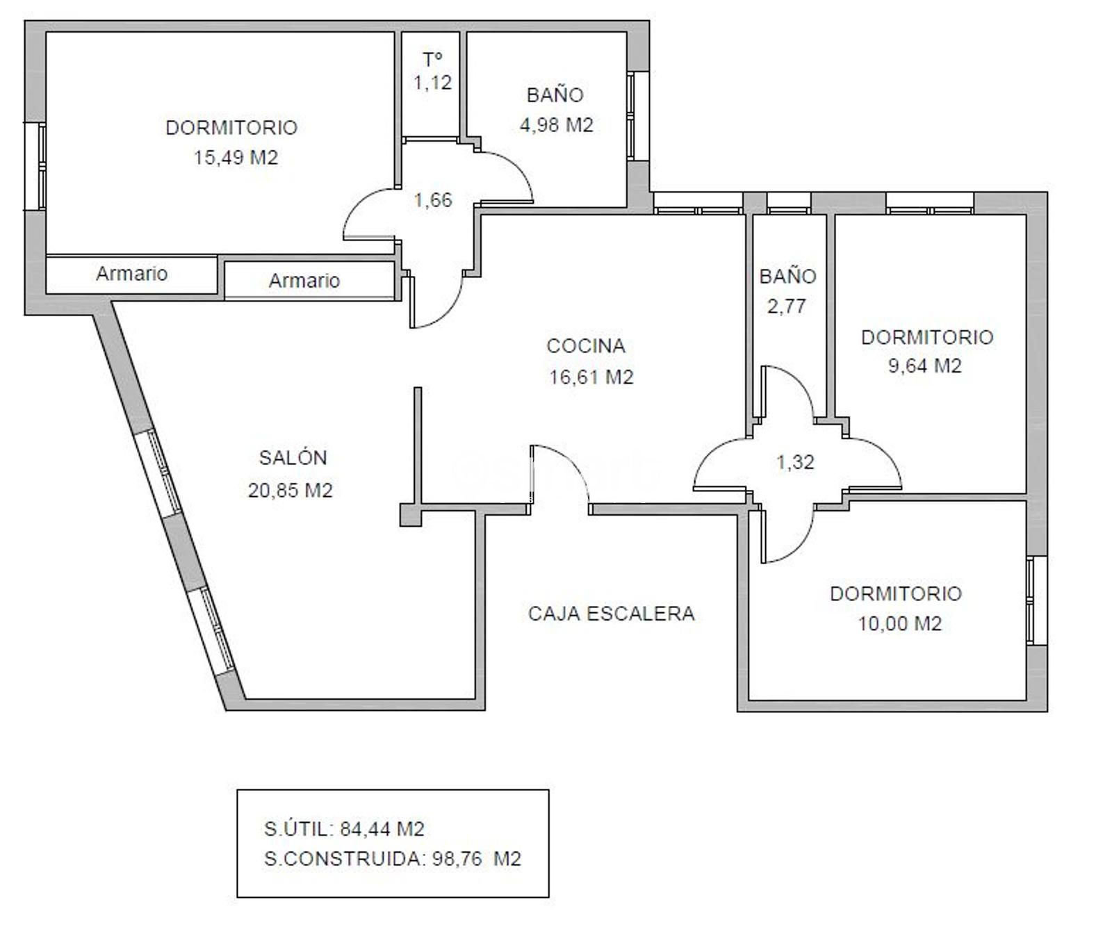
Este piso se encuentra en la primera planta de un edificio sin ascensor, situado en la calle Magdalena 35, una ubicación céntrica y bien comunicada. La vivienda cuenta con una superficie que permite una distribución cómoda y funcional, aunque requiere reforma para modernizar sus instalaciones y adaptarlas a las necesidades actuales.

El inmueble dispone de tres dormitorios, todos con espacio suficiente para camas dobles o individuales y armarios.

El piso cuenta con dos baños completos, ambos con ventana al exterior, lo que asegura una buena ventilación natural, algo poco común y muy valorado. El salón y la cocina comparten un único ambiente tipo "open space", lo que permite crear una zona de día amplia, luminosa y acogedora. Esta distribución abierta favorece la interacción familiar y el aprovechamiento del espacio.

Además, la vivienda dispone de una práctica despensa, ideal para almacenaje adicional, especialmente útil en cocinas abiertas. La necesidad de reforma ofrece una excelente oportunidad para personalizar el piso a gusto del comprador, manteniendo su estructura básica pero actualizando acabados, instalaciones y distribución según preferencias.

Una propiedad con gran potencial, ubicada en una zona con todos los servicios cercanos y muy bien conectada. Ideal tanto como inversión como para quienes buscan diseñar su hogar desde cero.

Características
Precio Venta 95.000 €
Año de construcción 1920
Construidos 108 m2
Precio/m² 880 €/m²
Dormitorios 3
Baños 2
Altura/Planta 1
Estado Para reformar
Calificación Energética En trámite
Escalas de eficiencia



Contáctanos

Si deseas más información sobre esta propiedad, por favor, rellena el formulario.

 Sí, he leído y/o acepto las Condiciones de uso y la Política de privacidad
Inmuebles similares:
 
103.000 €
Ref. 2888  110 m2  2  1
CALLE CARMEN BRAVO-VILLASANTE
 
77.600 €
Ref. 2977  130 m2  4  2
CALLE ALFREDO PUMARINO S/N